Blindeninstitut Franz-Ludwig-Straße

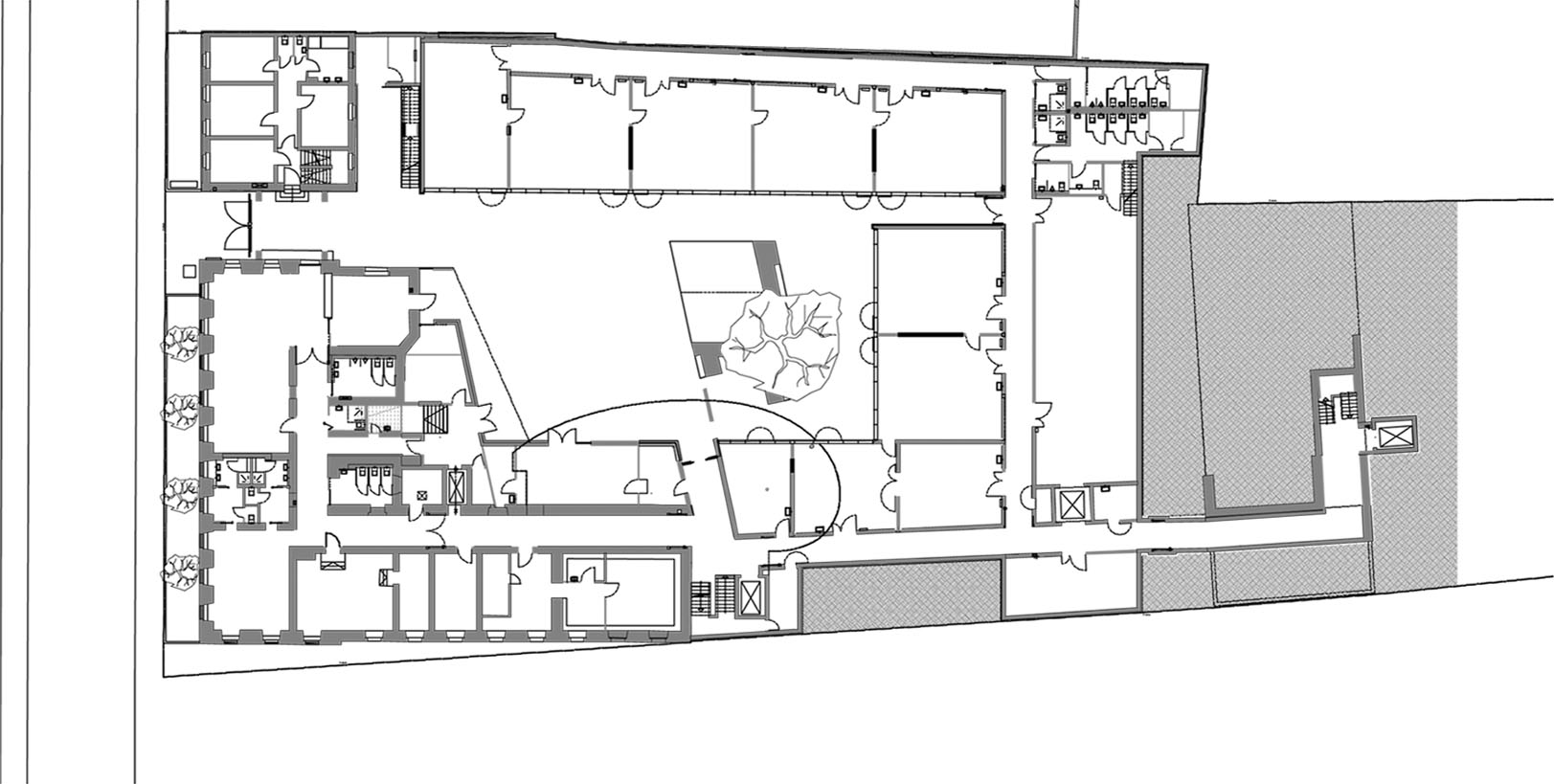
Aufgabe war die Erweiterung eines bestehenden innerstädtischen Gebäudekomplexes zur Werkstatt mit Verwaltung, Wohngruppen und Dienstwohnungen.

Diese Mischnutzung ermöglicht die direkte Anbindung von wohnen und Arbeiten und dient der Integration der Sehgeschädigten ins städtische Leben.

Die bestehenden Gebäudeteile mit Wohngruppen wurde um einen Speisesaal mit Küche ergänzt. Die Werkstatt und die dazugehörige Verwaltung sind topographisch in den Hof integriert, so dass die Wohnungen und Wohngruppen das Gesamtensemble abrunden und den Bewohnern trotz innerstädtischer Lage Frei- und Erholungsflächen zur Verfügung stehen.

Stand:
Fertigstellung

Bauherr:
öffentlich – Blindeninstitut Würzburg

Mitarbeit:
Marion Götzl