Fahrzeugreinigungsanlage Kaserne Hammelburg

Beschreibung

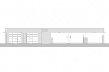
Die Fahrzeugreinigungshalle in der Saaleck-Kaserne Hammelburg ist ein erdgeschossiger Neubau, bestehend aus einem geschlossenen Hallenteil mit zwei Waschplätzen sowie Technikräumen, einem offenen Hallenteil mit drei weiteren Außenwaschplätzen, zur Nutzung in der frostfreien Zeit, und einem im Freien liegenden Innenreinigungsplatz.
Die offene und die geschlossene Halle bilden zusammen eine Einheit und dienen zur Reinigung von Bundeswehrfahrzeugen mit einem Gesamtgewicht bis ca. 60t. Zwischen den einzelnen Waschplätzen, an den Längsseiten, sind jeweils Arbeitsbühnen als Art Stege in einer Höhe von ca. 2,50m angeordnet, um das Reinigen der Fahrzeuge von oben bzw. des Daches zu ermöglichen. Direkt aneinandergrenzende Waschplätze sind durch Spritzwände getrennt. Die zwischen den Waschplätzen angeordneten Technikräume beinhalten Heizung, Lüftung, Sanitär sowie eine Hochdruckreinigungsanlage, Elektro- und EDV-Installationen. Die Hülle der Stahlkonstruktion bilden im Bereich der Wand- und Dachflächen Sandwichpaneele. Die geschlossene Halle wird durch zwei motorisch betriebene Sectionaltore mit Schlupftür, die vollflächig verglast sind, verschlossen. Fenster mit Wärmeschutzverglasung, auf der Rückseite der geschlossenen Halle, sorgen für mehr Belichtung und Tageslicht.

Projekt-Info

Stand:
Fertigstellung 2021

Bauherr:
Staatliches Bauamt Schweinfurt

Mitarbeit:
Matthias Hörner

Objektfotografie:
BHA

Galerie