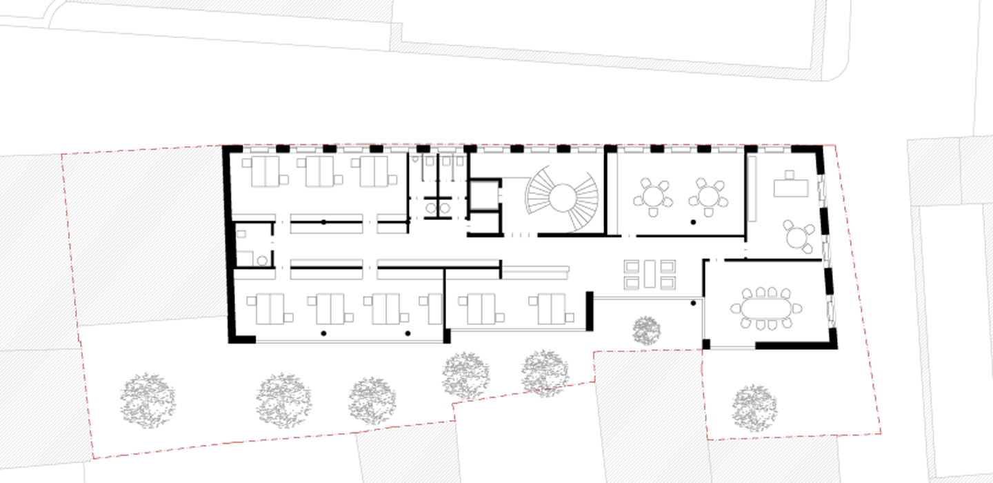
Neubau Büro- und Wohnhaus

Beschreibung

Stellungnahme der Stadtbildkommission:
`Das Bauvorhaben wurde angemessen aus dem städtischen Umfeld und historischen Kontext abgeleitet und sorgfältig entwickelt. … Das Projekt zeigt eine außerordentlich gute Lösung der Lückenschließung in diesem Quartier. … Das Projekt wird befürwortet.´

Projekt-Info

Stand:
Baugenehmigung

Mitarbeit:
Hannes Appold
Julian Bauer
Kilian Ulsamer

Modellfotografie:
Büro Bruckner

Galerie