Pleicherpfarrgasse

Beschreibung

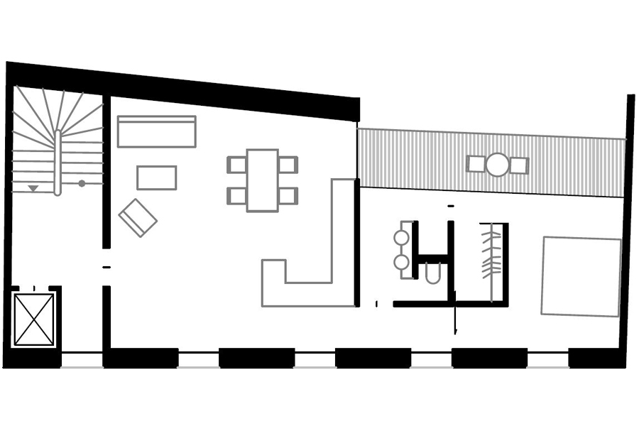
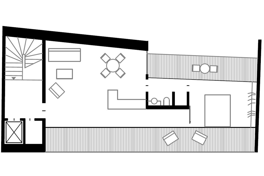
Eine der letzten Kriegsruinen-Grundstücke in der Innenstadt von Würzburg soll neu bebaut werden. Hierbei soll der eingeschossige Behelfsbau durch einen Neubau ersetzt werden, der die Straßenflucht schließt. Die Maße der umgebenden Bebauung werden aufgenommen, sodass sich das Gebäude in das große Ganze einfügt, ist aber weiterhin als ein Produkt seiner Zeit zu erkennen. Das Haus wird aus Dämmbeton gegossen, mit vertikalen Fensterformaten und einem Erschließungsband für Hauszugang und Garagen. Auf der wenig tiefen Parzelle werden drei lichtdurchflutete Wohnungen entstehen, abgehoben vom Verkehr der Straße.

Projekt-Info

Bauherr: Privat

Mitarbeit: Michael Altrock

Galerie