PWC Rastanlage Berg

Beschreibung

Im Gestaltungswettbewerb „Entwicklung eines modularen Gebäudes“ wird seitens der Bundesautobahn beabsichtigt entlang deutscher Autobahnen eine modular aufgebaute „Toilettenanlage“, bestehend aus wahlweise Solo-WC-Kabinen, Unisex-WC-Kabinen, Wascheinrichtungen, Aufenthaltsräumen, Technikbereichen sowie überdachten Freiräumen, für Neubauten von Rastanlagen aber auch Ersatzneubauten auf bereits bestehenden Rastanlagen zu entwickeln, die unter anderem auch als Handbuch für in Zukunft zu erstellende Gebäude dienen soll.
Dabei sollen die neuen Anlagen nicht nur auf einem hohen Vorfertigungsgrad basieren, sondern auch eine innovative und nachhaltige Gestaltung sowohl in der Gebäudehülle als auch in der Technik aufweisen.
Ziel ist es das zu errichtende Gebäude aus verschiedenen Modulen individuell nach einem Baukastenprinzip zusammenzustellen, um je nach Erfordernis auf die räumlichen Bedürfnisse der jeweiligen Anlage reagieren und beliebig erweitern zu können.

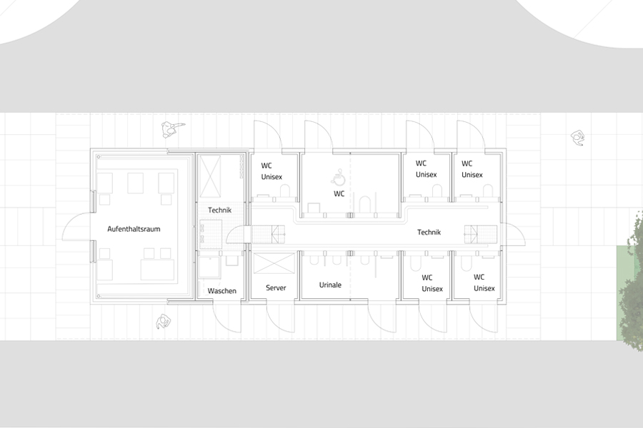
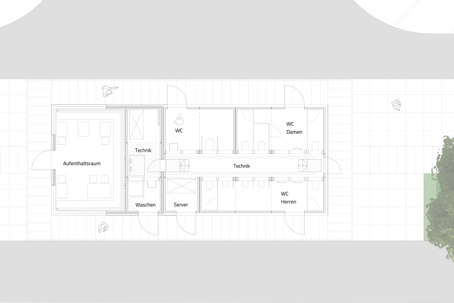
Die einzelnen, 100% recyclebaren Raummodule bestehen aus Stahl-Betonfertigteilen mit „offenen“ Rückseiten zur Aufnahme der Sanitär-Installationsmodule. Einheitliche Installationsmodulgrößen für Waschtisch, WC, Urinal und Blindelementen ermöglichen eine werkseitige, flexible Komplettausstattung. Leidglich die Außenverkleidung wird vor Ort ergänzt. Dies ermöglicht nicht nur eine leichte Austauschbarkeit der Installationsmodule bei einem Defekt oder Vandalismus, sondern auch eine leichte Anpassungsfähigkeit der Raumbestückung bei Bedarfsänderung.
Durch die in der Nacht beleuchtete, prägnante Dachform und das darunter umlaufende Lichtband für Logo und Raststättenname, ist das Gebäude zu jeder Tageszeit wiedererkennbar.
Zusammen mit dem Gebäude wird auch die Außenanlage durch eine geeignete Freianlagenplanung angemessen mit regionalen Baustoffen für Außenbeläge und regionaler Bepflanzung gestaltet.

Projekt-Info

Gestaltungswettbewerb

Bauherr:
Die Autobahn

Mitarbeit:
Matthias Hörner
Johannes Knoblauch
Tobias Wagner
Nadine Vollmer

Galerie